PDF + editable DXF deliverables
≈5 cm to scan accuracy for plan geometry
e57 / XYZ up to 30 GB supported

Disclaimer
File outputs from BIMIT Engine 3.0 are automated and constantly being updated for improvement during the Beta period. While powerful, it's not perfect. Expect errors and omissions. Do not use plans for construction.
HOW IT WORKS
View, measure, and download editable CAD files—in minutes

Upload scan file
Upload up to 10GB point cloud file in .XYZ or .e57 format (unstructured, colorized, with Z-Axis up)

Let BIMIT process
Multi-floor point clouds are segmented by the BIMIT Engine in order to create 1 sheet per level

View, measure, and download
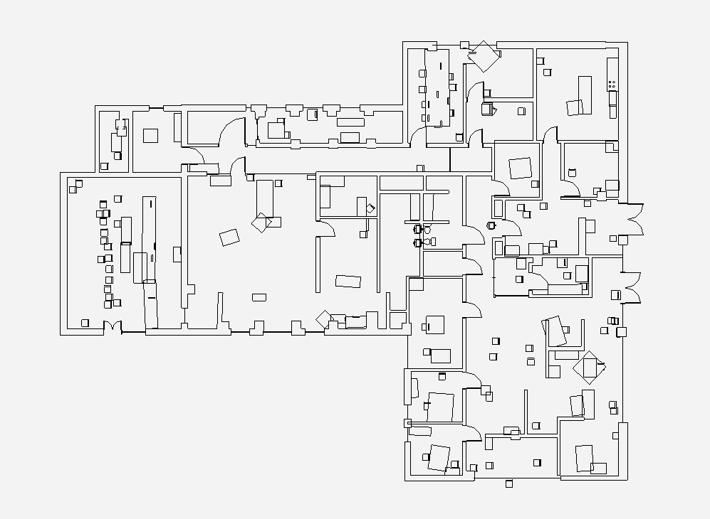
Floor plan currently includes walls, windows, floors, doors, and columns.
BIMIT PLAN BETA
FILE DELIVERABLE
AUTOMATED PLANS
BIMIT 3.0'S PERFORMANCE
How Engine 3.1.0 compares to manual BIM drafting
COMPARED TO MANUAL DRAFTING
ACCURACY RANGE
BIMIT Plan DELIVERABLES
See your plan being processed
Once you've placed an order, you'll receive realtime updates in a secure, browser-based experience.

Floor Plan Production, at scale

get answers quickly
Frequently Asked Questions
Is BIMIT Plan automated?
What’s required to join the closed BIMIT Plan beta?
What point cloud formats does BIMIT Plan accept?
What file formats does BIMIT Plan create?
What does BIMIT Plan cost?
What are known limitations of the BIMIT Plan product?






















